RealtyDepotNY
Cell: 347-219-2037
Fax: 718-896-7020

















































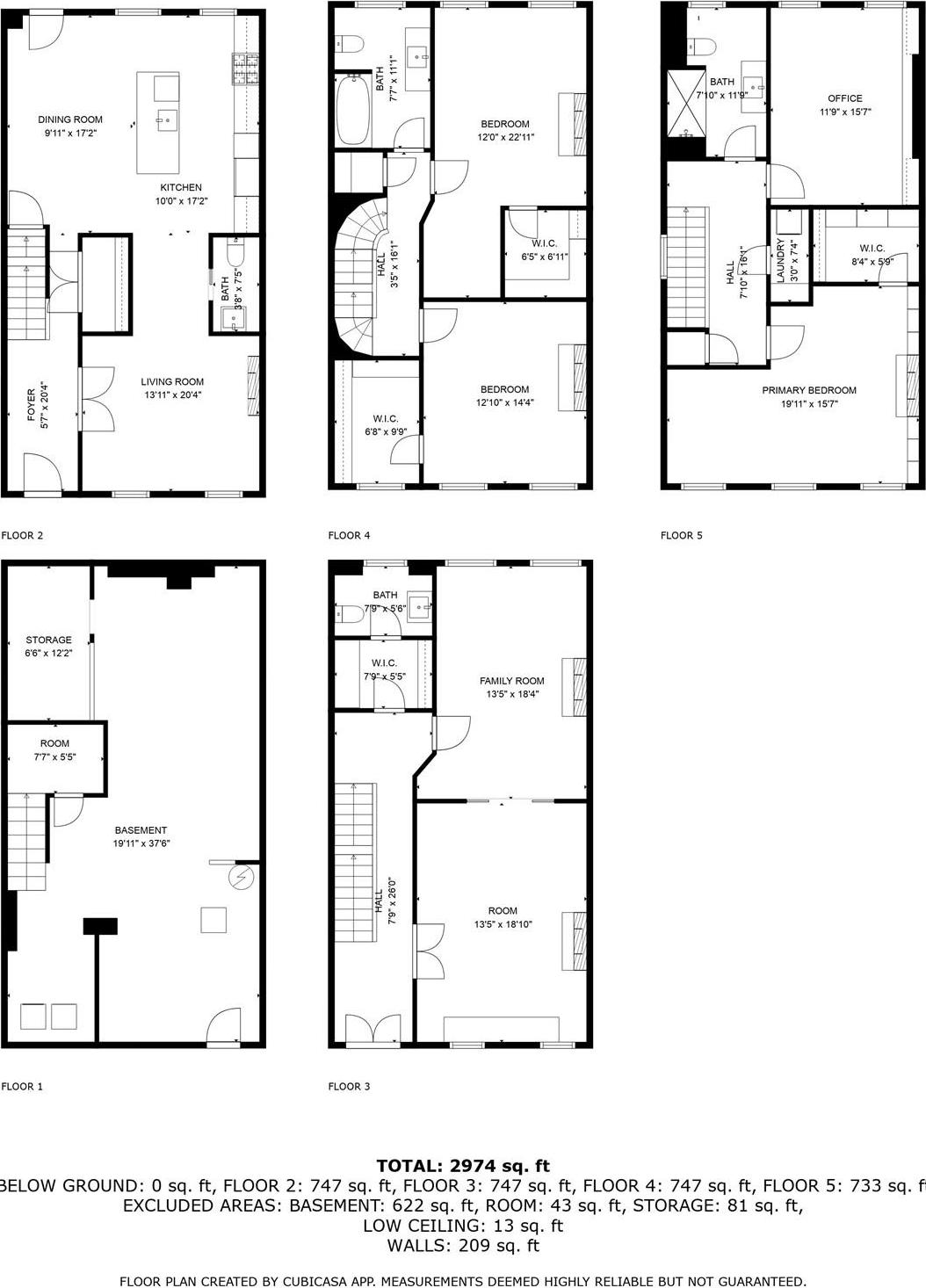
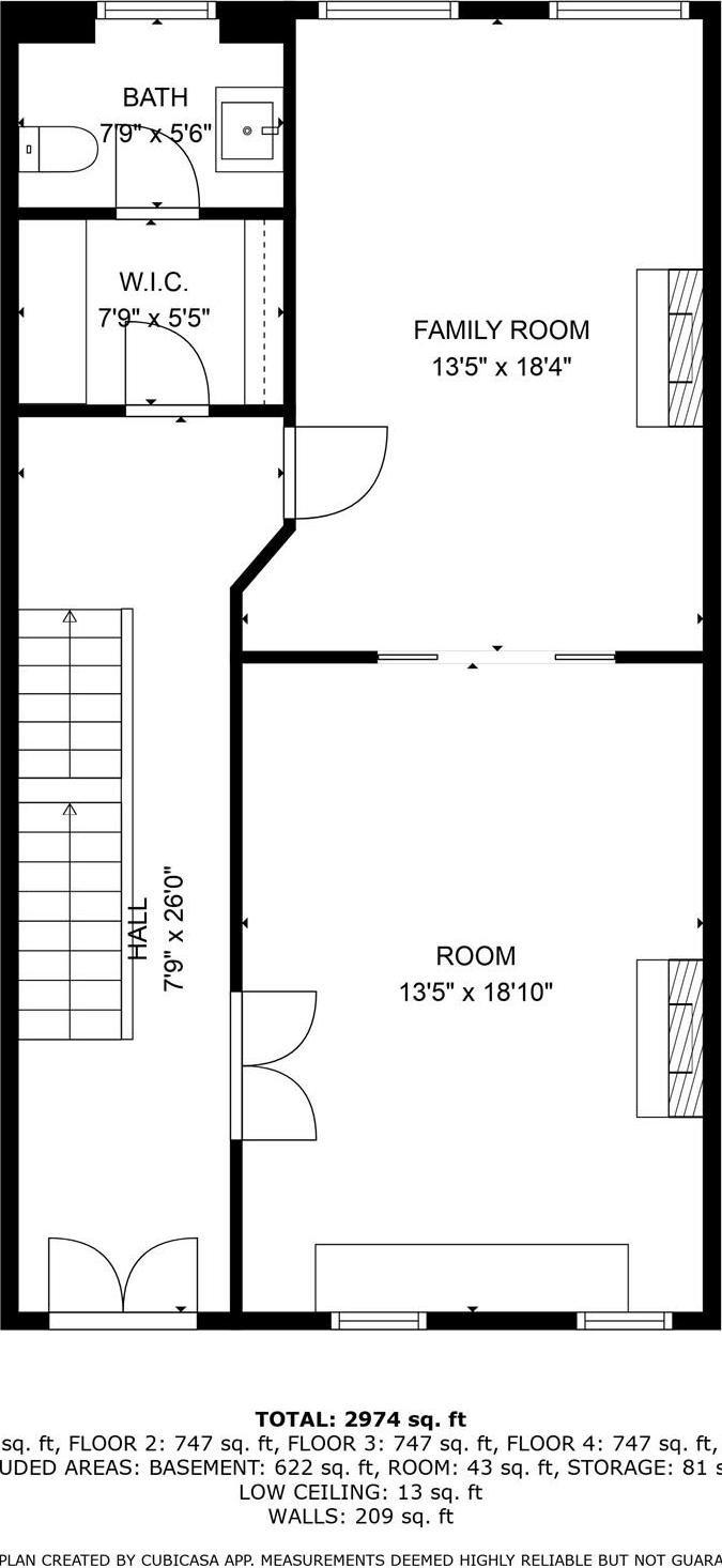
Welcome To 17 East 128th Street, A Rare Unique Opportunity To Own A Piece Of Nyc History As One Of The Oldest Townhouses In Harlem With Landmark Status. This Immaculate 4 Story Townhouse Has Been Completely Updated By The Current Owner Since 2015 And Offers An Ample Amount Of Space With 3, 200 Square Feet Of Living Space With An Additional Unfinished Basement. As You First Walk Up To The Home You Have Stairs Going Up To The Parlor Floor With A Door Underneath For Entrance To The Main Floor. You Enter The First Floor/main Floor To A Hallway. From The Hallway You Have A Living Room, And A Half Bath. As You Walk Towards The Back Of The Home You Have An Open Concept Modern Kitchen Flowing To A Large Dining Area. From The Dining Area You Have Access To The Backyard Terrace That Was Completely Redone. Stairs From The Main Floor Lead To An Unfinished Basement With Storage, Mechanicals, And 1 Of The 2 Laundry Areas. The Parlor Floor Offers Two Large Rooms Currently Being Used As Another Living Room As Well As Office Space. There Is Also A 2nd Half Bath On This Floor. The 3rd Floor Offers Two Large Bedrooms Both With Walk-in Closets And Full Updated Bath. The Top Floor Offers Two Additional Bedrooms And Another Updated Full Bathroom. The Current Owner Completed Massive Renovations Since His Purchase In 2015 Installing All New Plumbing, Electrical Systems, Wiring, Pvc Pipes As Well As The Replacement Of The Main Sewer Line All The Way Into The Street. He Replaced All The Appliances Including A Gas Stove, Microwave, Subzero Refrigerator, Washing Machine And Drier In The Basement. He Also Added A Washer Drier On The 4th Floor As Well As A Mitsubishi Heating Cooling System With Heat Pumps In Every Room. He Renovated And Installed All-new Bathrooms With New Showers, A Bathtub, And Sinks A Total Of 2 Full Baths And 2 Half Baths. In Addition He Constructed Spacious Walk-in California Closets On The 1st, 3rd And 4th Floors. He Replaced And Installed All New Hardwood Flooring, Painted And Restored Original Fireplaces, Molding, Ceramic Medallions On 12’ Ceilings, Wooden Floors And Modern Furniture. He Hired A Landscaping Company To Design The Garden And Patio In The Back Yard With An Underground Irrigation System Helping All The New Trees And Plants Be Vibrant Year Round. Come View Everything This Once In A Lifetime Property Has To Offer!
| Location/Town | New York |
| Area/County | Manhattan |
| Post Office/Postal City | New York (Manhattan) |
| Prop. Type | Single Family House for Sale |
| Style | Other |
| Tax | $10,120.00 |
| Bedrooms | 4 |
| Total Rooms | 9 |
| Total Baths | 4 |
| Full Baths | 2 |
| 3/4 Baths | 2 |
| Year Built | 1909 |
| Basement | Unfinished |
| Construction | Frame |
| Lot Size | 22 x 103 |
| Lot SqFt | 2,198 |
| Cooling | Central Air |
| Heat Source | Ducts, Other |
| Util Incl | Cable Connected, Electricity Connected, Natural Gas Connected, Phone Connected, Sewer Connected, Water Connected |
| Features | Balcony, Garden, Gas Grill, Lighting, Mailbox, Rain Gutters |
| Patio | Patio, Porch |
| Days On Market | 59 |
| Lot Features | Back Yard, Garden, Interior Lot, Level, Near Public Transit, Private, Sprinklers In Rear |
| Parking Features | None |
| Features | Eat-in kitchen, formal dining |
| Listing information courtesy of: Weichert Realtors Langer Homes | |