RealtyDepotNY
Cell: 347-219-2037
Fax: 718-896-7020

































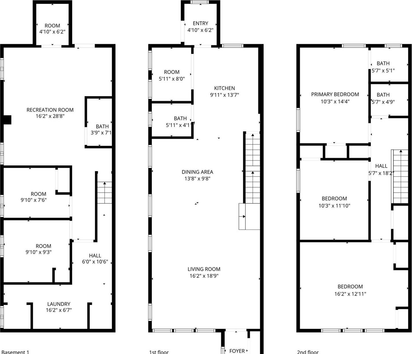
Prime Bayside Brick Home | School District 26 Located In The Heart Of Highly Desirable Bayside, This Solid Brick Residence Checks All The Boxes: Quiet Residential Block, Top-rated School District 26, And Strong Long-term Value. Sitting On A 22*100 Lot With R3-1 Zoning, This Property Offers Both Comfortable Living And Excellent Investment Potential. Fully Renovated And Move-in Ready. First Floor: Extra-large High-ceiling Living Room, Formal Dining Room, Bright Updated Kitchen, One Full Bath, And One Bedroom (perfect For Guests Or Home Office). Second Floor: 3 Spacious Bedrooms And 2 Full Baths, Including One En-suite. Finished Basement: Separate Entrance, 2 Rooms, 1 Full Bath, And Large Space — Ideal For Extended Family Or Flexible Use. Top School District 26: • Ps162 John Golden • Ms158 Marie Curie • Francis Lewis High School Just A 4-minute Walk To The Q27 Bus To Flushing. Close To Parks, Restaurants, Shopping, And Everyday Conveniences. Solid Structure, Prime Location, And Excellent School District — A Rare Opportunity In Bayside.
| Location/Town | New York |
| Area/County | Queens |
| Post Office/Postal City | Oakland Gardens |
| Prop. Type | Single Family House for Sale |
| Style | Tudor |
| Tax | $8,038.00 |
| Bedrooms | 3 |
| Total Rooms | 9 |
| Total Baths | 4 |
| Full Baths | 4 |
| Year Built | 1930 |
| Basement | Finished, Full, Walk-Out Access |
| Construction | Brick |
| Lot SqFt | 2,200 |
| Cooling | None |
| Heat Source | Natural Gas |
| Util Incl | Natural Gas Connected, Sewer Connected, Water Connected |
| Days On Market | 29 |
| Parking Features | Garage |
| Tax Assessed Value | 59760 |
| School District | Queens 26 |
| Middle School | Ms 158 Marie Curie |
| Elementary School | Ps 162 John Golden |
| High School | Francis Lewis High School |
| Features | First floor full bath, high ceilings, open kitchen |
| Listing information courtesy of: Chase Global Realty Corp | |