RealtyDepotNY
Cell: 347-219-2037
Fax: 718-896-7020



























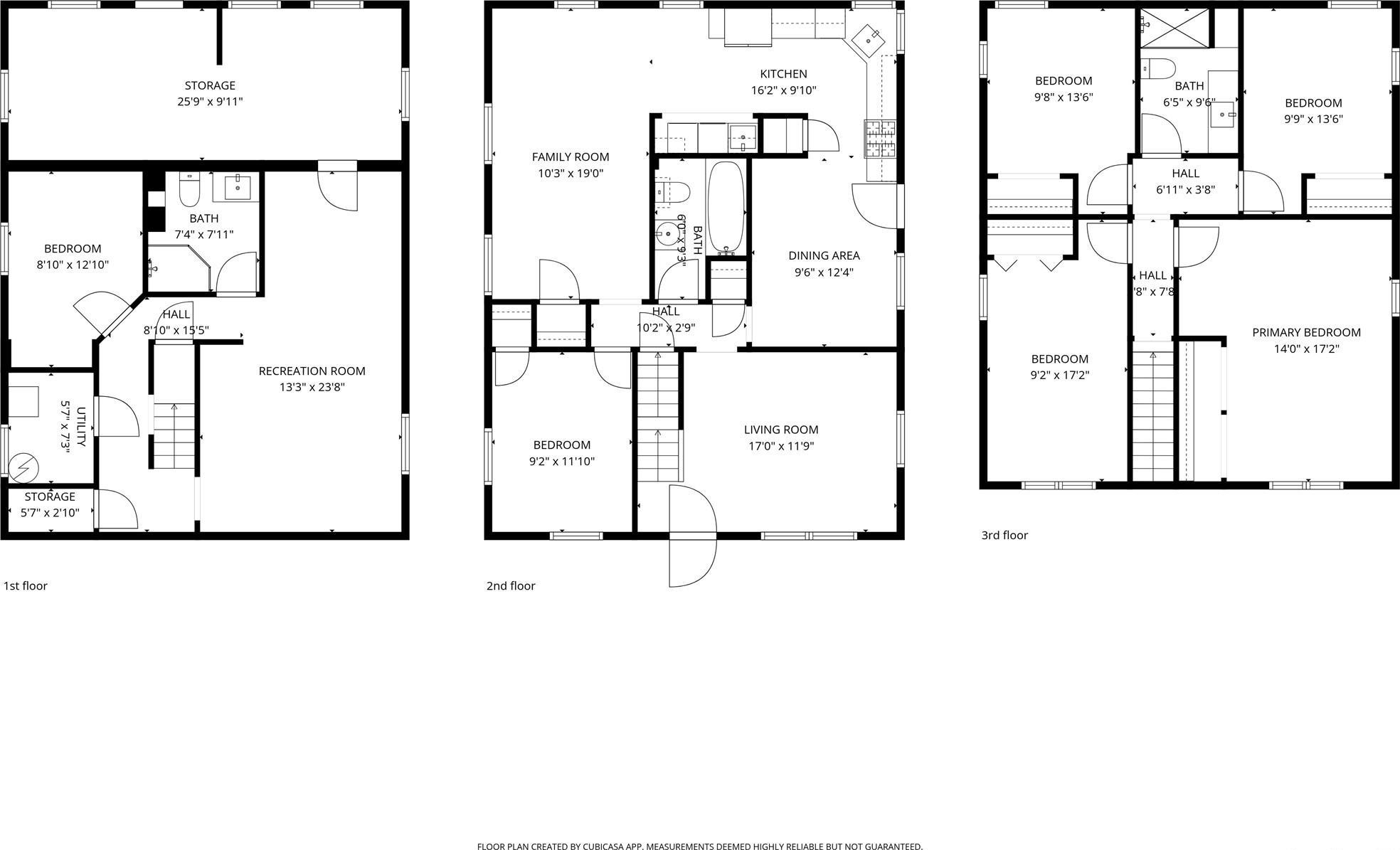
Flexible Floor Plan In The Heart Of Mid-westchester. Pride Of Ownership Shines Throughout This Well Maintained Original-owner Home. Featuring Andersen Windows, Brand New Roof, Brand New Above Ground Oil Storage Tank, Weil Mclain Boiler Installed 2016, Fully Encapsulated Continuous Exterior Foam Insulation... This Property Offers Both Comfort And Efficiency To The New Owner. The Spacious Main Floor Boasts A Large Eat In Kitchen And Flexible Layout With A First-floor Bedroom, Laundry Area, Primary Living Room And Additional Dining Area. Upstairs You’ll Find Four Generously Sized Bedrooms And A Full Bathroom With Space For Everyone. Downstairs Over 500 Sq Ft Finished Walk-out Basement (not Included In The Listed Square Footage) With Separate Entrance Features Brand-new Flooring, An Updated Full Bathroom, And An Additional Office/spare Room Ideal For Work, Recreation Or Additional Guest Space. A Separate 300 Unfinished Sq. Ft. Of Storage/workshop Area With Electricity Opens Directly To The Backyard Offering Excellent Utility And Hobby Space. A Full Attic Provides Even More Storage Options Upstairs. Centrally Located In Mid-westchester This Home Offers Convenient Access To Major Highways Just 45 Minutes To Nyc, 10 Minutes To White Plains, And A Short Walk To The Pleasantville Train Station, Jacob Burns Theatre And The Vibrant Downtown Village Known For Its Weekly Farmers Market And Community Events. This Home Combines Thoughtful Updates Flexible Living Spaces, And An Unbeatable Location For The New Owners.
| Location/Town | Mount Pleasant |
| Area/County | Westchester County |
| Post Office/Postal City | Pleasantville |
| Prop. Type | Single Family House for Sale |
| Style | Colonial |
| Tax | $16,155.00 |
| Bedrooms | 5 |
| Total Rooms | 9 |
| Total Baths | 3 |
| Full Baths | 3 |
| Year Built | 1952 |
| Basement | Finished |
| Construction | Vinyl Siding |
| Lot SqFt | 4,792 |
| Cooling | Wall/Window Unit(s) |
| Heat Source | Baseboard, Hot Water |
| Util Incl | Propane, Trash Collection Public |
| Days On Market | 12 |
| Parking Features | Driveway |
| Tax Assessed Value | 7800 |
| School District | Mount Pleasant |
| Middle School | Westlake Middle School |
| Elementary School | Columbus Elementary School |
| High School | Westlake High School |
| Features | First floor bedroom, first floor full bath, eat-in kitchen, formal dining, pantry |
| Listing information courtesy of: Nestedge Realty | |