Tel: 718-896-0777
Cell: 347-219-2037
Fax: 718-896-7020



























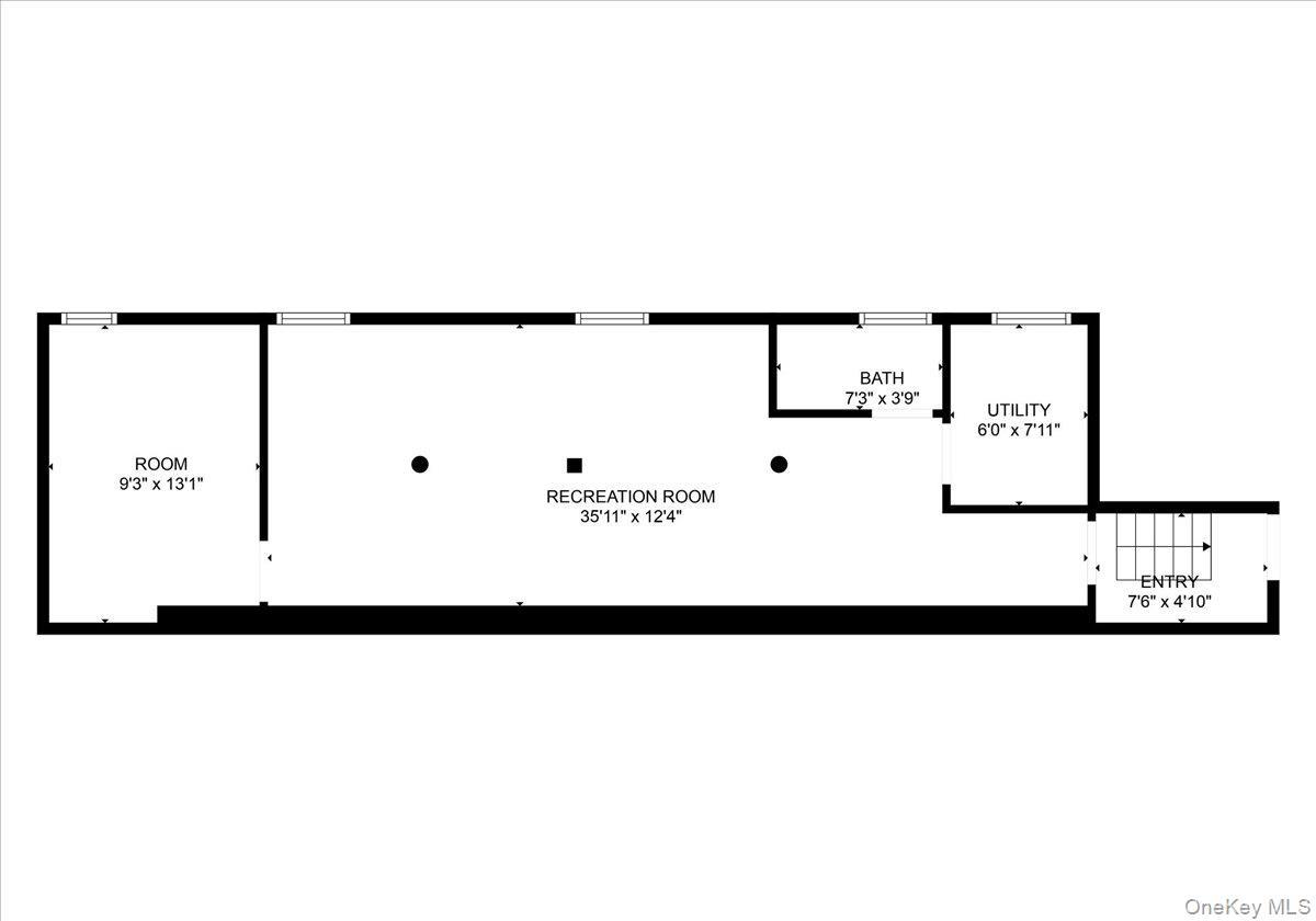
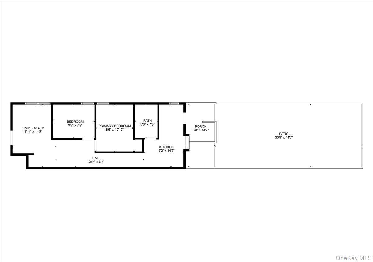
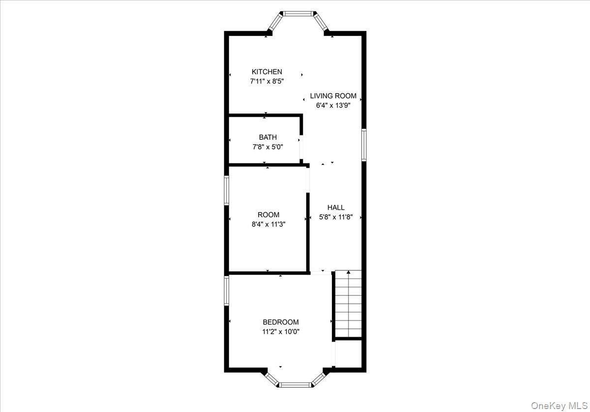
Welcome To This Well-maintained Single-family Home In The Heart Of South Richmond Hill, Conveniently Located Across From 101 Avenue On 115th Street. This Spacious Residence Features A Bright Living Room, And An Updated Kitchen With Ample Cabinet Space. Upstairs Offers Comfortable Bedrooms And A Full Bath. The Finished Basement With Outside Entrance Provides Additional Living Or Recreational Space, Perfect For Extended Family Or Guests. Private Backyard, Great For Entertaining. Close To Schools, Shops, Transportation, And Houses Of Worship. A Wonderful Opportunity To Own A Home In A Prime Location!
| Location/Town | New York |
| Area/County | Queens |
| Post Office/Postal City | Richmond Hill S. |
| Prop. Type | Single Family House for Sale |
| Style | Colonial |
| Tax | $4,922.00 |
| Bedrooms | 4 |
| Total Rooms | 9 |
| Total Baths | 2 |
| Full Baths | 2 |
| Year Built | 1920 |
| Basement | Finished, Full |
| Construction | Vinyl Siding |
| Lot SqFt | 1,857 |
| Cooling | Central Air |
| Heat Source | Natural Gas |
| Util Incl | Cable Available, Electricity Connected, Natural Gas Connected, Sewer Connected, Trash Collection Public, Water Connected |
| Condition | Updated/Remodeled |
| Days On Market | 176 |
| Parking Features | Off Street |
| School District | Queens 27 |
| Middle School | Jhs 226 Virgil I Grisson |
| Elementary School | Queens Explorers Elementary Sc |
| High School | Epic High School North |
| Features | First floor bedroom, first floor full bath, entrance foyer, primary bathroom |
| Listing information courtesy of: Legacy Estate Realty | |