RealtyDepotNY
Cell: 347-219-2037
Fax: 718-896-7020






























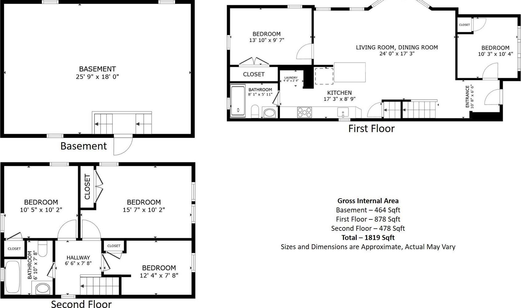
Move Right Into This Fully Gut Renovated Single Family Home Offering Approximately 1, 880 Square Feet Of Living Space With 5 Bedrooms, 2 Full Bathrooms, And A Semi Finished Basement With A Separate Entrance And Excellent Potential. The Property Sits On A Rare Double Lot Measuring Roughly 60x90, Totaling About 5, 400 Square Feet, And Includes A 2 Car Garage Plus A Private Driveway For Ample Parking And Outdoor Flexibility. Major Upgrades Include 100% New Plumbing, New Electrical, New Roof, New Siding, New Boiler, And A New Hot Water Tank, Delivering True Turnkey Condition And Long Term Reliability. The First Floor Features 2 Bedrooms, A Kitchen, Dining Room, Living Room, And A Full Bathroom, While The Second Floor Offers 3 Bedrooms And A Full Bathroom. Conveniently Located Near Q5, Q85, Q86, Q89, Q113, And Q114 Bus Lines, With Nearby Lirr Stations At Laurelton, Rosedale, And Valley Stream For Easy Access To Jamaica, Midtown Manhattan, And Long Island.
| Location/Town | New York |
| Area/County | Queens |
| Post Office/Postal City | Rosedale |
| Prop. Type | Single Family House for Sale |
| Style | Other |
| Tax | $2,077.00 |
| Bedrooms | 5 |
| Total Rooms | 9 |
| Total Baths | 2 |
| Full Baths | 2 |
| Year Built | 1925 |
| Basement | Partially Finished, Walk-Out Access |
| Construction | Block |
| Lot Size | 60' X 89.4 |
| Lot SqFt | 5,365 |
| Cooling | Wall/Window Unit(s) |
| Heat Source | Baseboard, Natural G |
| Util Incl | Cable Available, Electricity Available, Water Available |
| Days On Market | 40 |
| Parking Features | Detached, Driveway |
| School District | Contact Agent |
| Middle School | Call Listing Agent |
| Elementary School | Contact Agent |
| High School | Contact Agent |
| Features | First floor bedroom, first floor full bath |
| Listing information courtesy of: RE/MAX Edge | |