RealtyDepotNY
Cell: 347-219-2037
Fax: 718-896-7020




























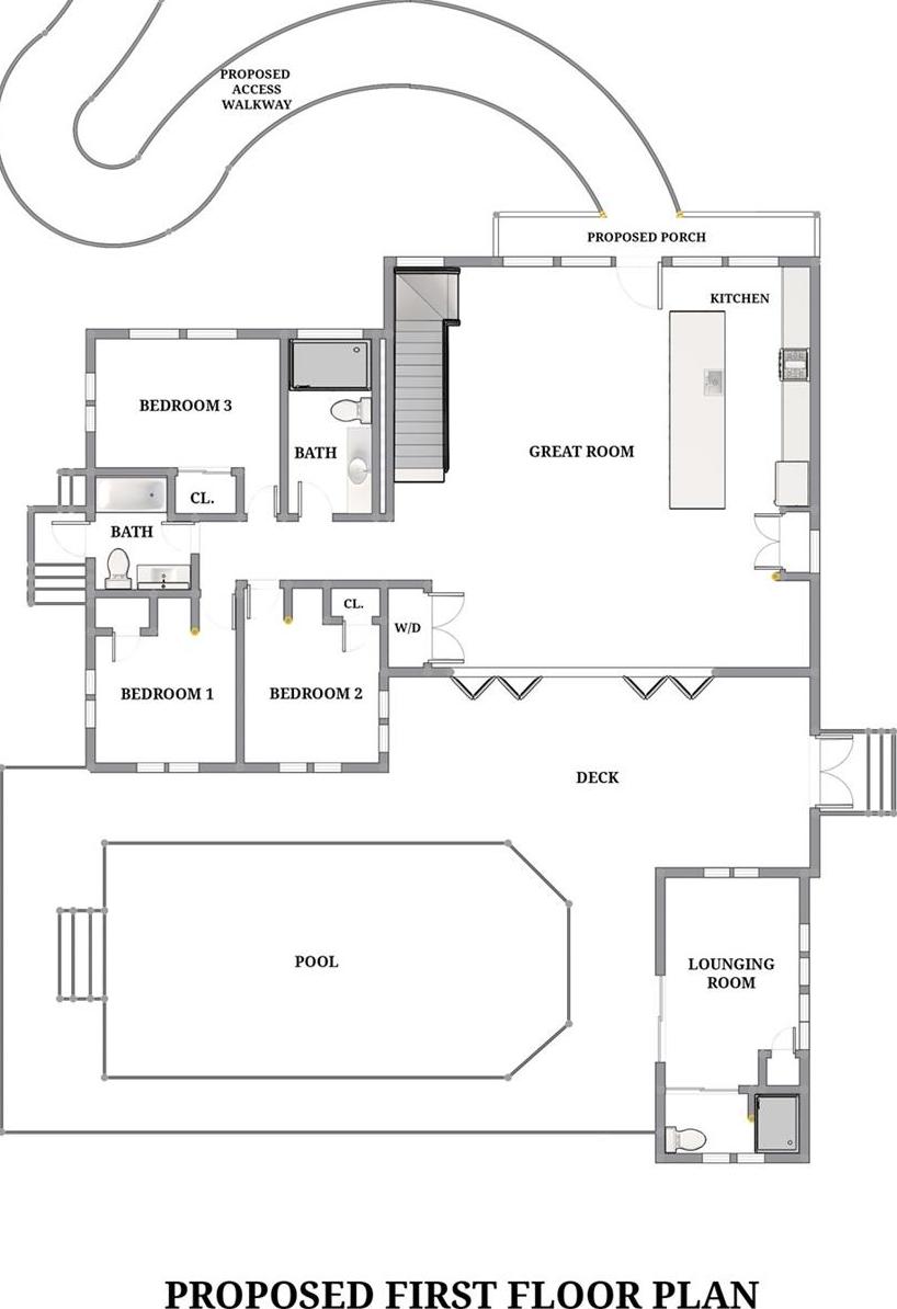
A Rare Opportunity To Realize Your Dream Home On Fire Island. Included In This Offering Are Unapproved Architectural Concept Plans For A Transformational Second-story Addition And Full Redesign—envisioning A 6-bedroom, 5-bath Luxury Residence Plus Guest Cottage, Complete With Expansive Entertaining Decks, A Rooftop Lounge, Wet Bar, And Hot Tub Overlooking The Great South Bay. These Conceptual Designs Imagine Elevated Indoor-outdoor Living, With Horizon-to-horizon Views And A Commanding Presence Just Steps From Seaview’s Bay Beach And Tennis Courts. While The Plans Are Not Yet Submitted Or Approved, They Offer An Inspiring Roadmap For Transforming This Property Into A Landmark Fire Island Retreat. And The Best Part? You Don’t Have To Wait To Enjoy It. The Existing Home Is Beautifully Renovated And Fully Turnkey. The Main House Features 3 Bright Bedrooms And 2 Stylish Full Baths, A Chef’s Kitchen With Bosch Appliances And Alkaline Water Filtration, Tankless Hot Water, Central Air And Heat, And Thoughtfully Landscaped Grounds Supported By An Automatic Sprinkler System. A Separate 1-bedroom, 1-bath Guest Cottage Offers Extra Space For Guests Or Remote Work, While The Saltwater Pool And Expansive Deck Provide The Perfect Backdrop For Entertaining Or Quiet Relaxation. Whether You’re Looking To Move In Immediately Or Bring Your Vision To Life Over Time, 31 Laurel Ave Offers Both Lifestyle And Long-term Upside In One Of Fire Island’s Most Desirable Neighborhoods. ?? Conceptual Plans Included In Sale; Not Submitted Or Approved ?? Low Annual Flood Insurance (~$2, 834/year) ?? Enjoy Now. Build For Tomorrow.
| Location/Town | Islip |
| Area/County | Suffolk County |
| Post Office/Postal City | Seaview |
| Prop. Type | Single Family House for Sale |
| Style | Other |
| Tax | $7,911.00 |
| Bedrooms | 4 |
| Total Rooms | 7 |
| Total Baths | 3 |
| Full Baths | 3 |
| Year Built | 1960 |
| Construction | Other |
| Cooling | Ductless |
| Heat Source | Heat Pump |
| Util Incl | Cable Available, Electricity Available, Electricity Connected, Propane, Trash Collection Private, Water Available, Water Connected |
| Condition | Updated/Remodeled |
| Days On Market | 37 |
| Tax Lot | 39 |
| Association Fee Includes | Water |
| School District | Bay Shore |
| Middle School | Bay Shore Middle School |
| Elementary School | Woodhull School |
| High School | Bay Shore Senior High School |
| Features | First floor bedroom, first floor full bath, high speed internet, kitchen island, open floorplan, open kitchen, master downstairs |
| Listing information courtesy of: Fire Island Sales And Rentals | |