RealtyDepotNY
Cell: 347-219-2037
Fax: 718-896-7020
































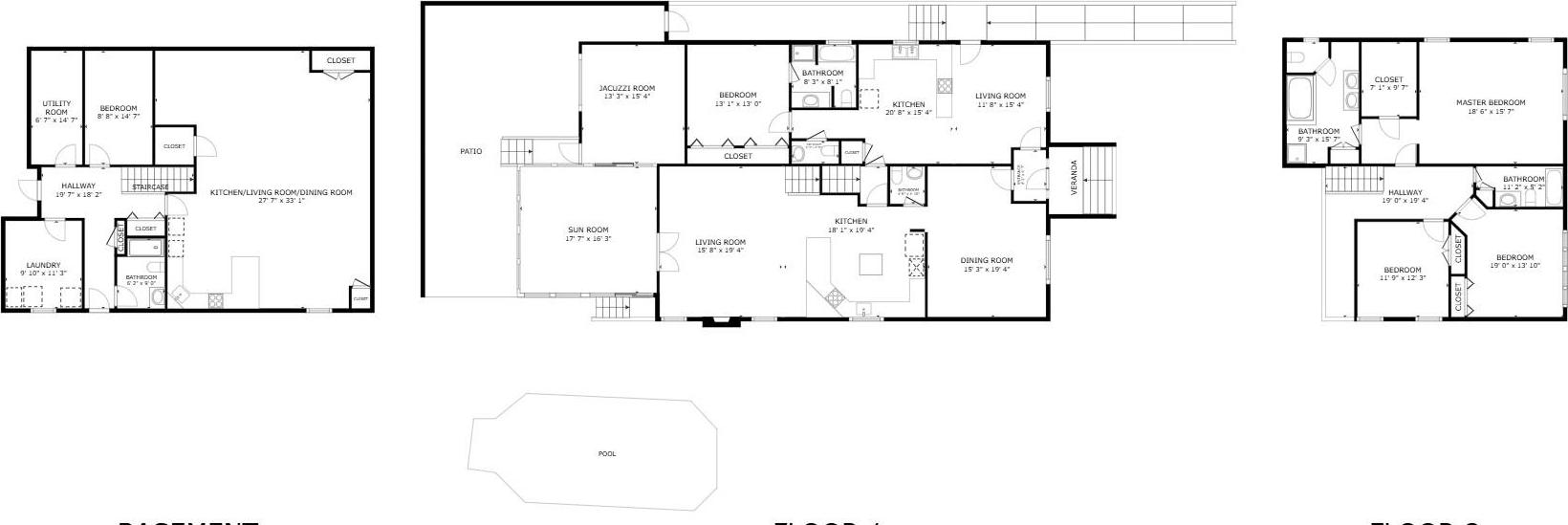
Custom Built 2 Family On 7700 Sqft Parcel Home Is On 50x100 Pool Is Separate Lot. Entry Vestibule Has Entrance To Main House And Apartment Which Is On The Main Floor, Also Has Handicapable Ramp To The Apartment. Main House Features Large Dining Room Custom Kitchen 2 Story Living Room With Fireplace Sliders To Sunroom And Jacuzzi Room. 2nd Floor Features A Primary Bedroom Suite With Jetted Tub Double Sink Vanity Walk In Closet 2 Other Bedrooms Full Bath Loft Pull Down Stairs To Large Storage Attic. Finished Basement Tons Of Closet, Kitchen 3/4 Bath Amazing Space With Access To Yard. Inground Salt Water Pool With Gas Heater, Yard Features Deck And Quiet Sitting Area Convenient To Vz Bridge And Transportation A One Of A Kind
| Location/Town | New York |
| Area/County | Staten Island |
| Post Office/Postal City | Staten Island |
| Prop. Type | Single Family House for Sale |
| Tax | $8,576.00 |
| Bedrooms | 4 |
| Total Baths | 4 |
| Full Baths | 4 |
| Year Built | 2005 |
| Basement | Finished, Full |
| Construction | Brick, Vinyl Siding |
| Total Units | 2 |
| Cooling | Central Air |
| Heat Source | Hot Water |
| Util Incl | Cable Connected, Electricity Connected, Sewer Connected, Trash Collection Public, Water Connected |
| Pool | In Ground, |
| Days On Market | 3 |
| Units | 2 |
| Features | Eat-in kitchen, kitchen island, primary bathroom, walk-in closet(s), washer/dryer hookup |
| Listing information courtesy of: BH&G Real Estate Safari Realty | |