RealtyDepotNY
Cell: 347-219-2037
Fax: 718-896-7020









































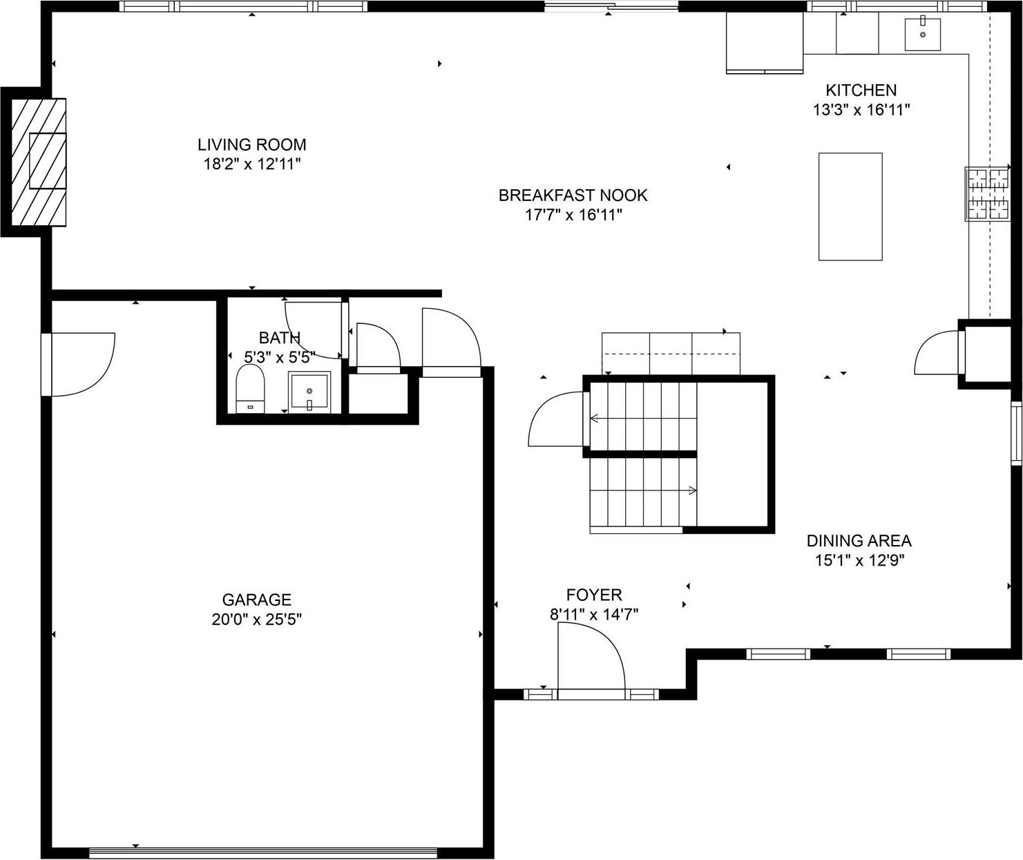
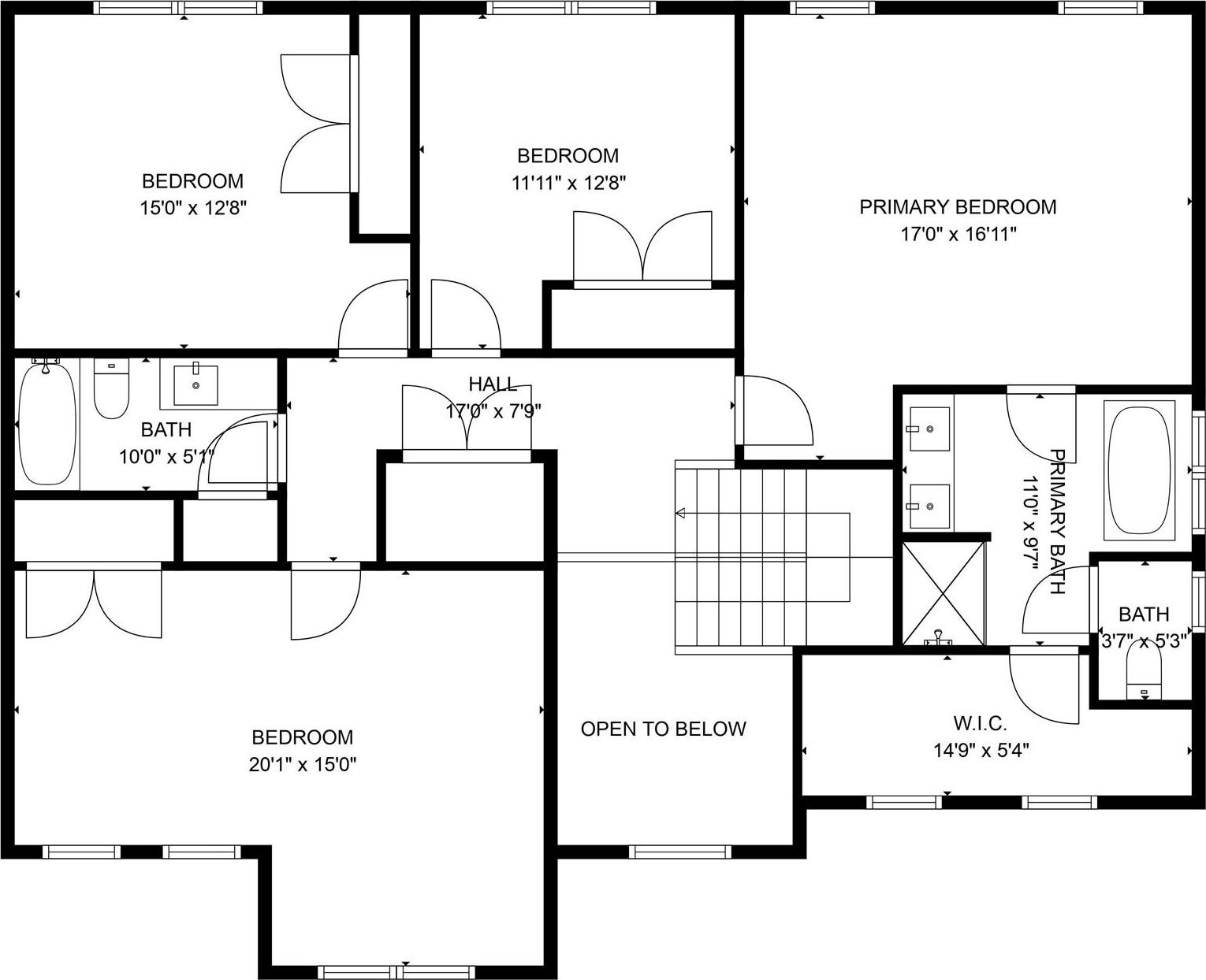
**to Be Built** The Highly Sought After Jefferson Model. Custom Colonial Style Home In The Wappingers School District On 3 Acres Of Property. Highlights Of This Almost 2500 Sqft, 4 Br 2.5 Bath Home Include 9' First Floor Ceilings, An Expansive, Open Concept Granite Kitchen, Pantry, Breakfast Area And Family Room With A Fireplace, Formal Dining Room, Den/study, Master Bedroom With Tray Ceiling, Second Floor Laundry And 2 Car Garage. Generous-sized Bedrooms, Master Bedroom With Master Bath And Walk In Closet, Full, Unfinished Basement. Reputable, Local Builder Offering Generous Builder Specifications Including Energy Efficient Infrastructure Elements, Seamless Gutters, 9' First Floor Ceilings, Oak Hardwood Floors Throughout The First Floor Except Family Room And Bathroom, Full Blacktop Driveway And Much More. Pictures Shown Are Of A Previously Built Jefferson Model, Showing Multiple Options And Upgrades. Take A Walk Through The Virtual Tour. Well, Septic, Propane Heat, Appliance And Lighting Allowances Included. Choose This Home Or Select An Alternate Model/floor Plan. Excellent Location, Private, Yet Relative To All Shopping, Schools, Excellent Restaurants, And More!
| Location/Town | Wappinger |
| Area/County | Dutchess County |
| Post Office/Postal City | Wappingers Falls |
| Prop. Type | Single Family House for Sale |
| Style | Colonial, Contemporary |
| Tax | $2,489.00 |
| Bedrooms | 4 |
| Total Rooms | 10 |
| Total Baths | 3 |
| Full Baths | 2 |
| 3/4 Baths | 1 |
| Year Built | 2025 |
| Basement | Unfinished |
| Construction | Frame |
| Cooling | Central Air |
| Heat Source | Propane |
| Util Incl | Electricity Connected |
| Days On Market | 66 |
| School District | Wappingers |
| Middle School | Wappingers Junior High School |
| Elementary School | Myers Corners |
| High School | Roy C Ketcham Senior High Sch |
| Features | Cathedral ceiling(s), double vanity, formal dining, granite counters, high ceilings, kitchen island, walk-in closet(s) |
| Listing information courtesy of: KW MidHudson | |