RealtyDepotNY
Cell: 347-219-2037
Fax: 718-896-7020










































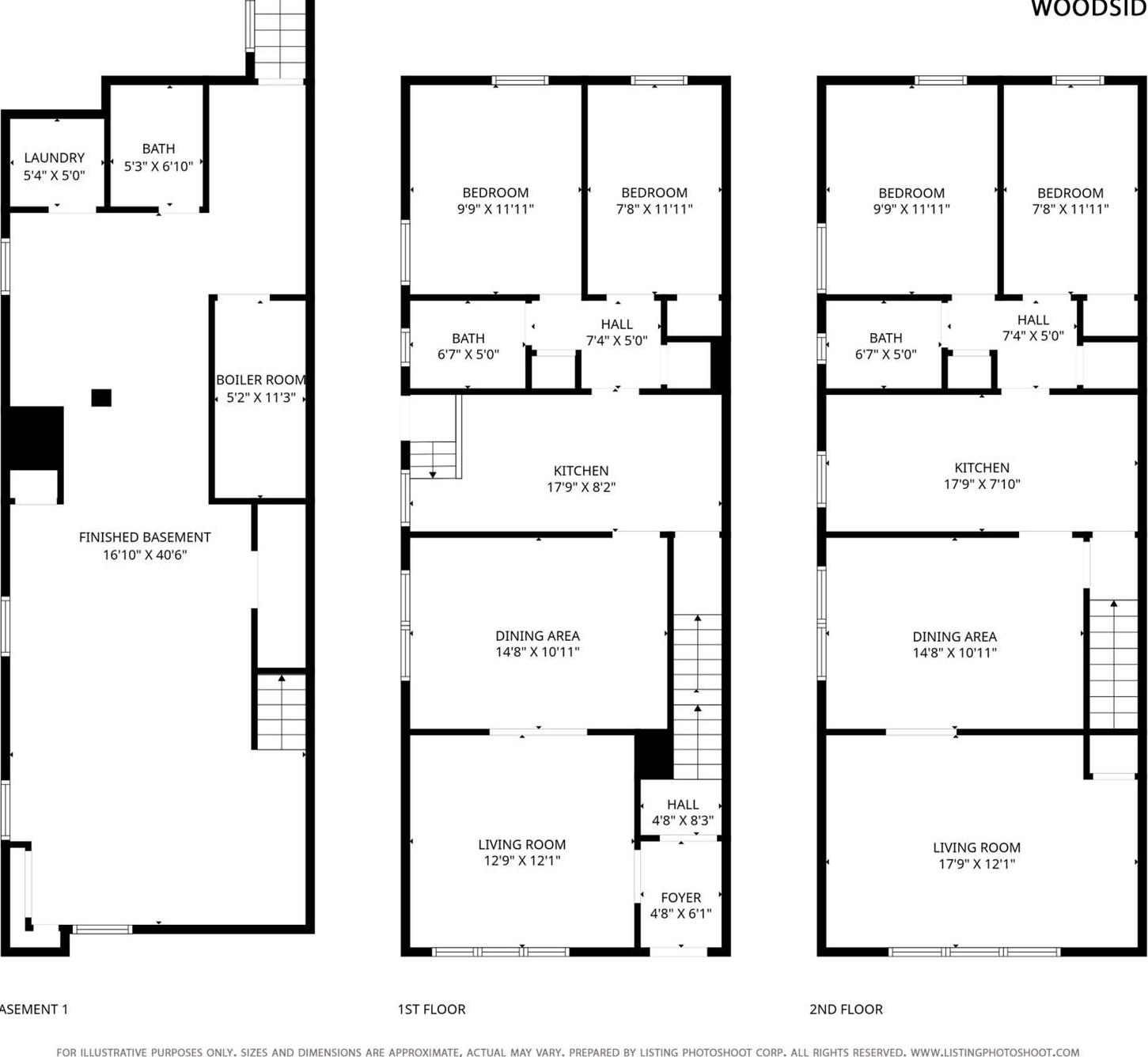
Excellent, Fully Renovated Two-family, Large Brick Semi-detached Home Located In The Heart Of Woodside, Offering Both Comfort And Convenience. This Well-maintained Property Is Truly In Move-in Condition And Features Modern Upgrades Throughout. The Home Includes All Brand-new, Energy-efficient Appliances, Including Stove, Refrigerator, Dishwasher, Microwave, Washer, And Dryer. The Kitchens Are Equipped With New Cabinetry, And All Bathrooms Have Been Completely Renovated With Contemporary Finishes. The Property Is Ideally Situated Just 8–10 Minutes’ Walk To The #7 Subway Line, Providing Easy Access To Manhattan And Surrounding Areas. It Is Also Conveniently Located Just One Block Off Queens Boulevard, Close To Shopping, Restaurants, Schools, Parks, And Other Local Amenities. Additional Highlights Include A Separate Two-car Garage, Offering Valuable Parking And Storage Space, As Well As The Durability And Classic Appeal Of A Brick Exterior. This Is An Excellent Opportunity For Owner-occupants Or Investors Seeking A Renovated, Income-producing Property In A Prime Woodside Location.************************ 2nd Floor: 3bedroom, Lr/dr, Eik, Full Bath 1st Floor: 2 Bedroom, Lr, Dr, Eik, Full Bath Basement: Family Room, Laundry Room, Utility Room, Full Bath, Separate Entrance.
| Location/Town | New York |
| Area/County | Queens |
| Post Office/Postal City | Woodside |
| Prop. Type | Single Family House for Sale |
| Style | Contemporary, Modern |
| Tax | $8,596.00 |
| Bedrooms | 5 |
| Total Rooms | 11 |
| Total Baths | 3 |
| Full Baths | 3 |
| Year Built | 1940 |
| Basement | Finished, Full |
| Construction | Brick |
| Lot Size | 23X100 |
| Lot SqFt | 2,300 |
| Cooling | Wall/Window Unit(s) |
| Heat Source | Natural Gas, Steam |
| Util Incl | Cable Connected, Electricity Connected, Natural Gas Connected, Sewer Connected, Trash Collection Public, Water Connected |
| Condition | Updated/Remodeled |
| Days On Market | 46 |
| Window Features | Double Pane Windows |
| Parking Features | Detached, Garage, Shared Driveway |
| Tax Assessed Value | 64140 |
| School District | Queens24 |
| Middle School | Is 125 Thomas J Mccann Woodsid |
| Elementary School | Children'S Lab School (The) |
| High School | Aviation Career And Tech High |
| Features | First floor bedroom, first floor full bath |
| Listing information courtesy of: Wagner & Kelly Inc | |