RealtyDepotNY
Cell: 347-219-2037
Fax: 718-896-7020










































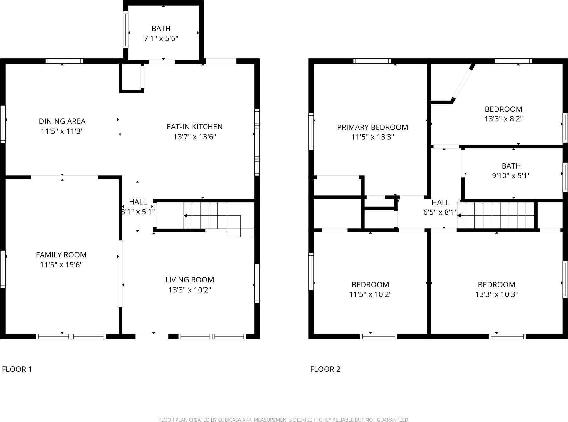
Rare Opportunity! Renovated 4 Bed/2 Bath Farmhouse Bordering The Historic D&h Canal. Enjoy The Private 2 Acres That Includes Remnants Of The Canal Including The Dry Dock Used To Maintain The Barges. The Inside Of The Home Is Freshly Painted And New Kitchen Appliances Installed, The Kitchen Is Complete With Hickory Cabinets And A Center Sitting Island With 3 Stools. Renovations Include New Carpeting In The Bedrooms, And Vinyl Plank Flooring Throughout The First Level. There Is Plenty Of Storage In The Walk Up Attic With Two Sets Of Stairs. A New 1, 000 Gallon Septic Tank Has Also Been Installed. On The Property Is A Detached 3-car Garage With Electric Service And New Doors. Also On The Property Is A Large Shed Built On A Stone Foundation With A Basement. Enjoy The Benefits Of This Picturesque Location With Reasonable School & Property Taxes.
| Location/Town | Mamakating |
| Area/County | Sullivan County |
| Post Office/Postal City | Wurtsboro |
| Prop. Type | Single Family House for Sale |
| Style | Colonial, Farmhouse |
| Tax | $5,427.00 |
| Bedrooms | 4 |
| Total Rooms | 8 |
| Total Baths | 2 |
| Full Baths | 1 |
| 3/4 Baths | 1 |
| Year Built | 1924 |
| Basement | Full, Walk-Out Access |
| Construction | Aluminum Siding |
| Lot SqFt | 87,120 |
| Cooling | None |
| Heat Source | Oil, Steam |
| Util Incl | Electricity Connected |
| Patio | Covered, Porch |
| Days On Market | 2 |
| Lot Features | Back Yard, Front Yard, Part Wooded, Sloped, Waterfront |
| Parking Features | Detached, Driveway, Garage, Off Street |
| Tax Assessed Value | 76500 |
| School District | Ellenville |
| Middle School | ELLENVILLE JUNIOR/SENIOR HIGH |
| Elementary School | Ellenville Elementary School |
| High School | ELLENVILLE JUNIOR/SENIOR HIGH |
| Features | Ceiling fan(s), chandelier, eat-in kitchen, entrance foyer, formal dining, kitchen island, original details, pantry, washer/dryer hookup |
| Listing information courtesy of: Cronin & Company Real Estate | |