RealtyDepotNY
Cell: 347-219-2037
Fax: 718-896-7020























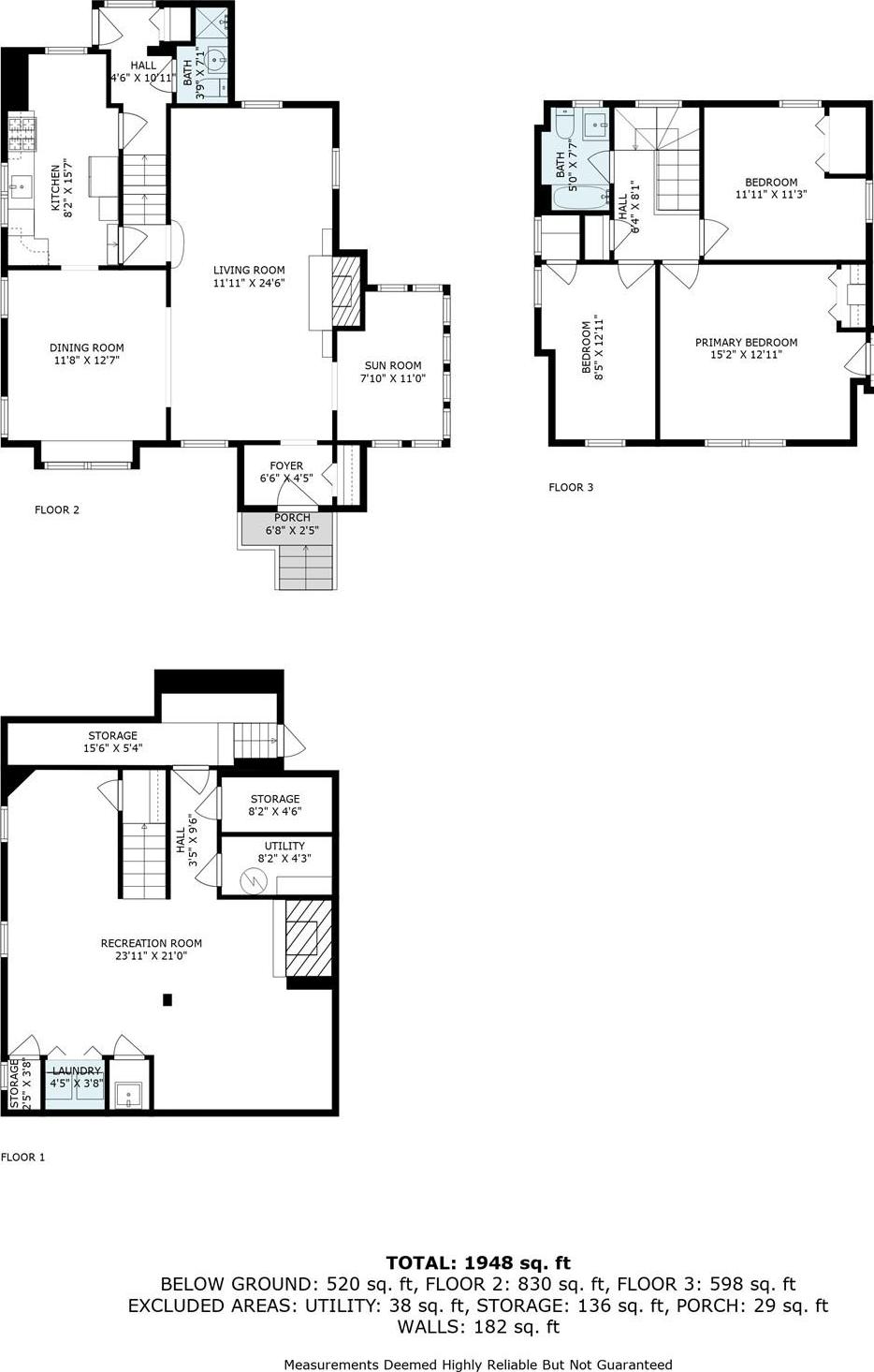
This Charming 3-bedroom, 2-bathroom Tudor-style Home Offers Approximately 1, 950 Square Feet Of Functional Living Space And Timeless Character. Upstairs, You’ll Find Three Comfortable Bedrooms With Walk-in Closets, Along With A Fully Renovated, Modern Bathroom With Soaking Tub. The Main Floor Features A Separate Kitchen With Space For Breakfast Nook, A Large Formal Dining Room, And A Welcoming Living Room With A Fireplace. The Bright And Airy Home Office/additional Living Space Is Surrounded By Windows On Three Sides Providing An Inspiring Space To Work Or Relax. The Fully Finished Basement Offers Incredible Flexibility, Featuring Its Own Fireplace, Laundry Area, And A Full Bathroom Located Right At The Top Of The Stairs. With Windows Bringing In Natural Light, It’s Perfect For Use As An Additional Living Area, Recreation Room, Or Private Guest Suite. Outside, The Spacious Yard Is Ready For Your Personal Touch — Whether That’s Creating A Lush Garden, Adding An Outdoor Dining Area, Or Simply Enjoying The Open Space. A Separate Garage With Extra Overhead Storage And A Long Driveway Provide Both Convenience And Ample Parking. The House Has Brand New Central Air Conditioning And Heating System For Year-round Comfort. Just 5–7 Minutes By Car To The Woodlawn Metro-north Station, With A Quick 25-minute Ride Bringing You Directly To Manhattan’s Grand Central Terminal, This Home Is Also Conveniently Close To Local Buses And The #4 Subway Line. The Spacious Tudor-style Residence Showcases Classic Architectural Character And Is Set In A Quiet, Low-traffic Enclave Known For Its Tree-lined Streets, Distinctive Tudor Homes, And Proximity To Green Spaces Like Tibbetts Brook Park. Offering Quick Access To Major Parkways And Public Transit, The Neighborhood Delivers A Rare Balance Of Tranquility And Convenience.
| Location/Town | Yonkers |
| Area/County | Westchester County |
| Prop. Type | Single Family House for Sale |
| Style | Tudor |
| Tax | $10,914.00 |
| Bedrooms | 3 |
| Total Rooms | 8 |
| Total Baths | 2 |
| Full Baths | 2 |
| Year Built | 1930 |
| Basement | Finished |
| Construction | Wood Siding |
| Lot SqFt | 4,792 |
| Cooling | Central Air |
| Heat Source | Natural Gas |
| Util Incl | Cable Connected, Natural Gas Connected, Phone Connected, Sewer Connected, Water Connected |
| Days On Market | 54 |
| Parking Features | Detached |
| School District | Yonkers |
| Middle School | Yonkers Middle School |
| Elementary School | Yonkers |
| High School | Yonkers High School |
| Features | First floor full bath, formal dining |
| Listing information courtesy of: Compass Greater NY, LLC | |